Другие проекты в продаже
ЖК Золотые пески. Евпатория

ЖК Moinaco Riviera. Евпатория

ЖК Сезоны Евпатория

ЖК ИССО. Евпатория

ЖК Кубики. Евпатория

ЖК Сага г.Саки,

ЖК Евпатория г.Евпатория

Симферополь с.Белоглинка
Рассрочка от застройщика до 4 лет без процентов
от 29,6
площадьIV квартал 2025
завершениеот 4 863300
стоимостьРассрочка от застройщика: до 4 лет без процентов
ЖК «Прогресс» — это удобный формат городской жизни с природой, инфраструктурой и комфортом в одном месте.
Отлично подойдёт для семей, молодых специалистов и тех, кто планирует покупку с перспективой на будущее.
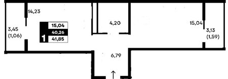
ТИПОВЫЕ ПЛАНИРОВКИ КВАРТИР
Площадь от 33.54 м2
Стоимость от 4.863.300 руб
ЖК «Прогресс» — это современный жилой комплекс комфорт-класса от надёжного застройщика ГК «Владоград», расположенный в селе Белоглинка, в 20 минутах от центра Симферополя и в 10 минутах от аэропорта. Комплекс объединяет продуманные планировки, развитую инфраструктуру и удобную транспортную доступность. Проект реализуется в несколько очередей, с поэтапной сдачей домов и объектов социальной сферы.
Площадь от 34.74 м2
Стоимость от 5.297.850 руб
ЖК «Прогресс» — это современный жилой комплекс комфорт-класса от надёжного застройщика ГК «Владоград», расположенный в селе Белоглинка, в 20 минутах от центра Симферополя и в 10 минутах от аэропорта. Комплекс объединяет продуманные планировки, развитую инфраструктуру и удобную транспортную доступность. Проект реализуется в несколько очередей, с поэтапной сдачей домов и объектов социальной сферы.
Площадь от 57.61 м2
Стоимость от 7.374.080 руб
ЖК «Прогресс» — это современный жилой комплекс комфорт-класса от надёжного застройщика ГК «Владоград», расположенный в селе Белоглинка, в 20 минутах от центра Симферополя и в 10 минутах от аэропорта. Комплекс объединяет продуманные планировки, развитую инфраструктуру и удобную транспортную доступность. Проект реализуется в несколько очередей, с поэтапной сдачей домов и объектов социальной сферы.
Площадь от 77.5 м2
Стоимость от 10.462.500 руб
ЖК «Прогресс» — это современный жилой комплекс комфорт-класса от надёжного застройщика ГК «Владоград», расположенный в селе Белоглинка, в 20 минутах от центра Симферополя и в 10 минутах от аэропорта. Комплекс объединяет продуманные планировки, развитую инфраструктуру и удобную транспортную доступность. Проект реализуется в несколько очередей, с поэтапной сдачей домов и объектов социальной сферы.
ЖК Прогресс. Симферополь это
Комплекс находится в селе Белоглинка — это всего 20 минут от центра Симферополя и 10 минут до аэропорта. Рядом — трассы, остановки транспорта, ТРЦ «Меганом», школы и магазины.
12–14-этажные монолитно-кирпичные дома, продуманное благоустройство и качественные материалы от застройщика с хорошей репутацией ГК «Владоград»
На территории:
— детский сад на 320 мест
— коммерческие помещения (магазины, кафе, пекарни)
— зоны отдыха, беговые и велодорожки
— площадки для домашних животных
— искусственный водоём с прогулочной зоной
Закрытая территория и безопасные дворы с зелёными зонами. Для автомобилей — многоуровневый паркинг на 1200 машиномест.
Квартиры от студий до 3-комнатных — с функциональной планировкой и предчистовой отделкой, готовой к ремонту.
Для удобства собственников предусмотрены кладовые помещения
Другие проекты в продаже
ЖК Золотые пески. Евпатория
ЖК Moinaco Riviera. Евпатория
ЖК Сезоны Евпатория
ЖК ИССО. Евпатория
ЖК Кубики. Евпатория
ЖК Сага г.Саки,
ЖК Евпатория г.Евпатория
НЕ НАШЛИ ПОДХОДЯЩЕЕ?
Укажите параметры недвижимости и мы подберем варианты в течение дня бесплатно