Другие проекты в продаже
ЖК Прогресс. Симферополь

ЖК Золотые пески. Евпатория

ЖК Moinaco Riviera. Евпатория

ЖК Сезоны Евпатория

ЖК ИССО. Евпатория

ЖК Кубики. Евпатория

ЖК Евпатория г.Евпатория

г.Саки,с.Прибрежное
Ваш новый дом в шаге от песчаных пляжей Крыма
40,53
площадьсдан
завершение9 848 790
стоимость
Жилой комплекс «Сага» расположен на западном побережье Крыма, между городами Саки и Евпатория.
Уникальное месторасположение на косе между Чёрным морем и уникальным природным объектом — розовым озером Сасык-Сиваш, близко к Сакским лечебным грязевым лиманам.
Современные дома с продуманной планировкой, просторными балконами и светлыми квартирами создают идеальные условия для жизни или сдачи в аренду.
Безопасные дворы, развитая инфраструктура и лёгкий доступ к пляжам делают этот комплекс желанным выбором для ценителей крымского побережья.
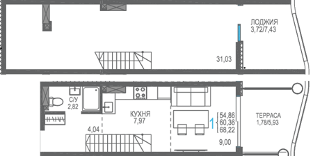
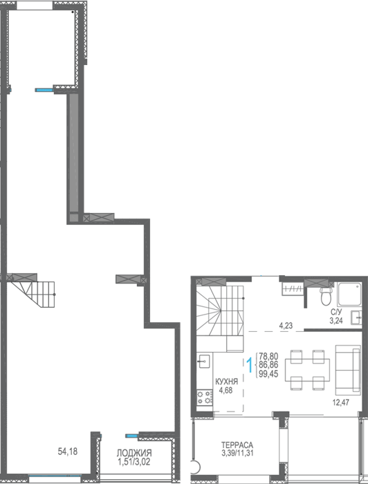
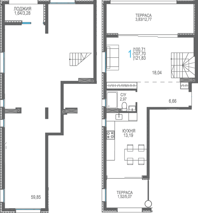
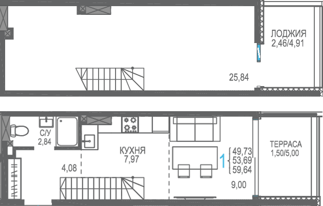
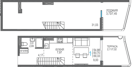
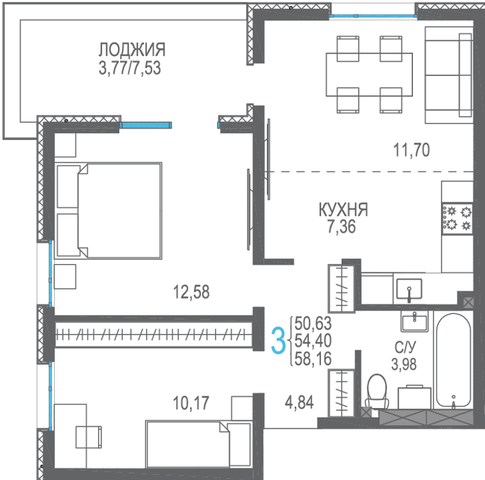
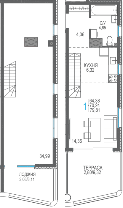
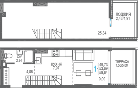
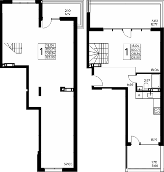
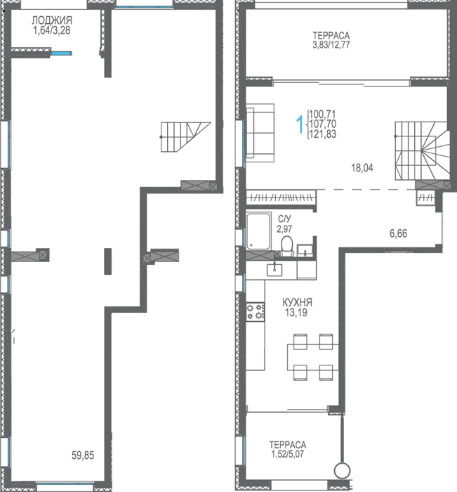
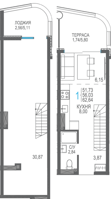
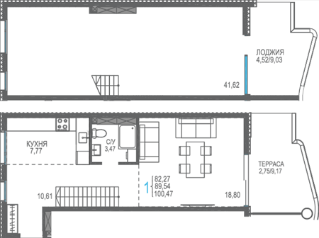
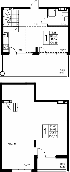
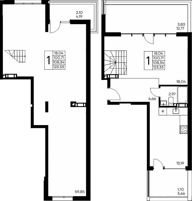
ТИПОВЫЕ ПЛАНИРОВКИ КВАРТИР
Площадь от 40.53 м2
Стоимость от 9.848.790 руб
ЖК «Сага» — это комплекс, где каждая квартира создаёт ощущение свободы и пространства. Комплекс расположен между Чёрным морем и розовым озером Сасык‑Сиваш, где каждый день встречает вас нежными закатами и свежим морским воздухом. В наличии представлены: • Квартиры в формате «Whiite box» — светлые, с с высокими потолками и чистыми стенами -готовые к воплощению любых дизайнерских решений. • Просторные квартиры свободной планировки, которые можно адаптировать под любые потребности: большая гостиная, отдельная рабочая зона или уютная спальня. • Двухуровневые квартиры для тех, кто ценит приватность, функциональность и ощущение собственного дома в доме. Где можно наслаждаться видом на море, розовое озеро и зелёные дворы • Квартиры с лоджиями и террасами, где можно завтракать с видом на озеро или встречать закат с бокалом вина. Каждая квартира сочетает современный комфорт и атмосферу курортного жилья: высокие потолки, большие окна, свет и простор. Это идеальный вариант как для постоянного проживания, так и для отдыха или инвестиций. Просторные дворы, зелёные аллеи, зоны отдыха и детские площадки делают жизнь здесь комфортной и безопасной. ЖК «Сага» — это не просто жильё, это стиль жизни, где каждый день ощущается как отпуск
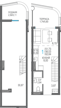
Площадь от 56.66 м2
Стоимость от 10.595.420 руб
ЖК «Сага» — это комплекс, где каждая квартира создаёт ощущение свободы и пространства. Комплекс расположен между Чёрным морем и розовым озером Сасык‑Сиваш, где каждый день встречает вас нежными закатами и свежим морским воздухом. В наличии представлены: • Квартиры в формате «Whiite box» — светлые, с с высокими потолками и чистыми стенами -готовые к воплощению любых дизайнерских решений. • Просторные квартиры свободной планировки, которые можно адаптировать под любые потребности: большая гостиная, отдельная рабочая зона или уютная спальня. • Двухуровневые квартиры для тех, кто ценит приватность, функциональность и ощущение собственного дома в доме. Где можно наслаждаться видом на море, розовое озеро и зелёные дворы • Квартиры с лоджиями и террасами, где можно завтракать с видом на озеро или встречать закат с бокалом вина. Каждая квартира сочетает современный комфорт и атмосферу курортного жилья: высокие потолки, большие окна, свет и простор. Это идеальный вариант как для постоянного проживания, так и для отдыха или инвестиций. Просторные дворы, зелёные аллеи, зоны отдыха и детские площадки делают жизнь здесь комфортной и безопасной. ЖК «Сага» — это не просто жильё, это стиль жизни, где каждый день ощущается как отпуск
ЖК Сага г.Саки, это
Квартиры с видом на море или на озеро, что повышает ценность и привлекательность для жизни и аренды.
Жители получают необычные виды и фотогеничную природу прямо из окон, чего нет у большинства других крымских ЖК.
Многие другие комплексы ограничены городскими пейзажами или близким соседством.
Между Чёрным морем и розовым озером Сасык‑Сиваш — редкое сочетание пляжа и природного объекта.
Всего 1 минута до пляжа, 3–5 минут до озера — другие комплексы часто расположены дальше от моря.
Рядом лечебные грязи и лиманы Сак, уникальные свойства которых ценятся для здоровья
Возможность поддерживать здоровье и отдыхать без поездок.
Это редкая комбинация «жильё + природные лечебные ресурсы» на Крымском побережье.
Закрытые дворы, детские и спортивные площадки, зоны отдыха, стрит-ритейл — продумано для комфорта жителей.
Дворы утопают в зелени, дизайнерские зоны отдыха, розовые закаты — ощущение гармонии с природой.
Квартиры с видом на море, озеро и зелёные зоны — ощущение простора и свободы.
Такой вид увеличивает ценность квартир для личного проживания и инвестиций.
Закаты над розовым озером создают неповторимую атмосферу, формируя эмоциональную ценность проживания.
Это не только эстетика, но и эмоциональный бонус для жителей, которого нет в других жилых комплексах.
Современные технологии строительства, продуманные планировки, высокие потолки — сочетание красоты природы с комфортом жилья.
Отделка White Box — возможность самостоятельно создать дизайн интерьера под себя.
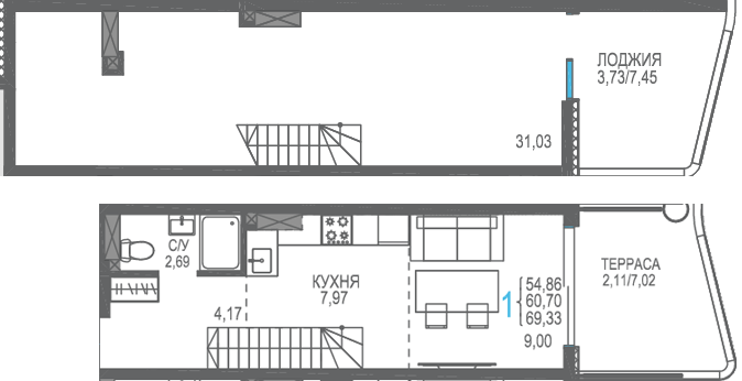
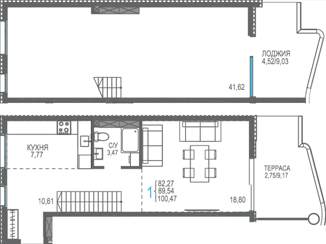
Уникальные планировки с терасами и лоджиями
Другие проекты в продаже
ЖК Прогресс. Симферополь
ЖК Золотые пески. Евпатория
ЖК Moinaco Riviera. Евпатория
ЖК Сезоны Евпатория
ЖК ИССО. Евпатория
ЖК Кубики. Евпатория
ЖК Евпатория г.Евпатория
НЕ НАШЛИ ПОДХОДЯЩЕЕ?
Укажите параметры недвижимости и мы подберем варианты в течение дня бесплатно